Description
Summary
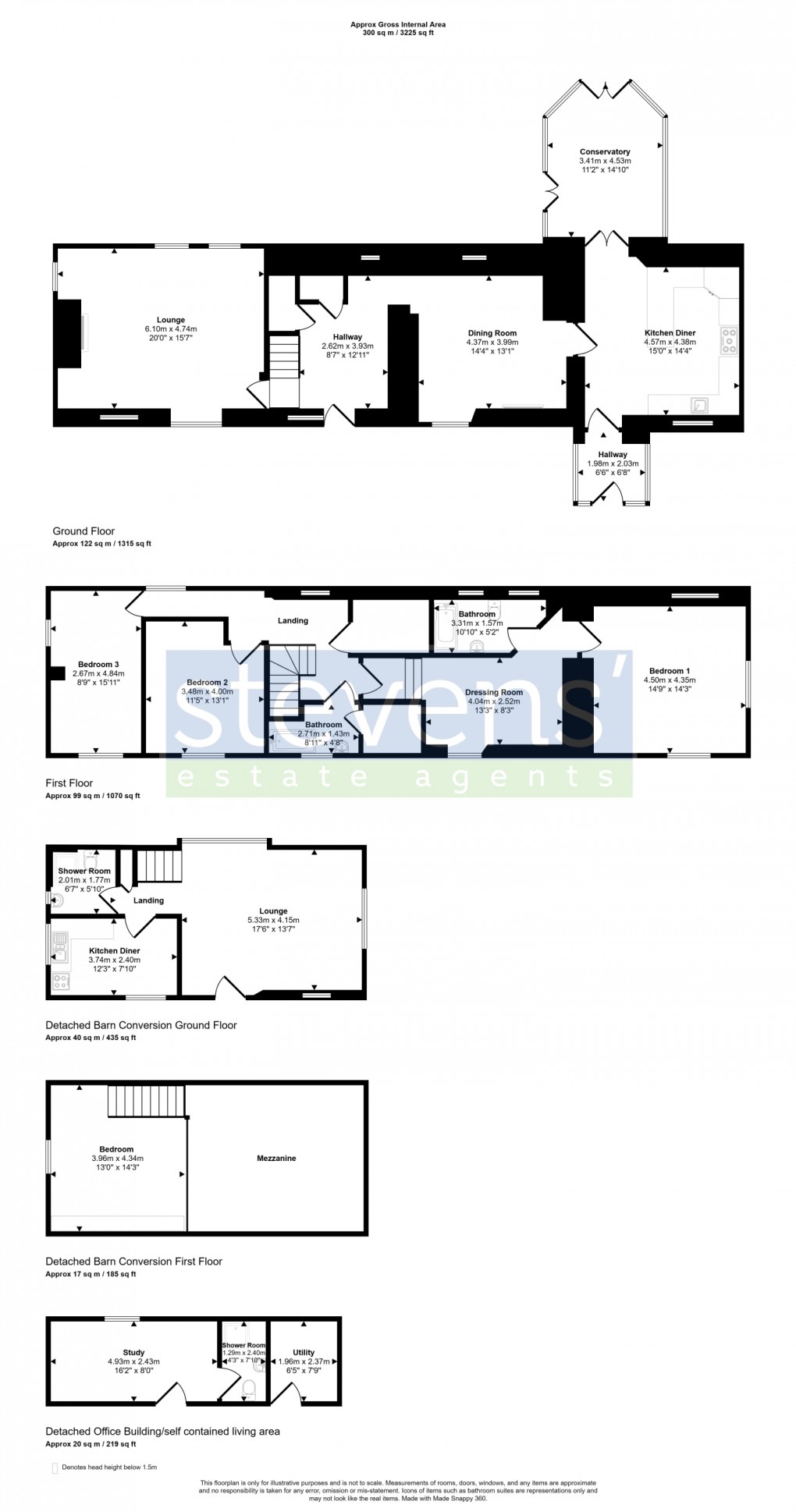
An impressive and characterful three bedroom thatched residence (not listed), this property combines timeless charm with generous, versatile living spaces. The main house offers spacious accommodation, including a large master bedroom, two further well proportioned bedrooms, and two particularly large reception rooms.Approached via a sweeping, tree lined private driveway, the home enjoys far reaching countryside views and sits beautifully within approximately 1.9 acres of secluded grounds. The gardens have been thoughtfully designed to encourage and support local wildlife, creating a peaceful, nature rich setting. Complementing the principal home is a separate, self-contained detached property, ideal for multi generational living or as a potential income generating opportunity. A further detached building also lends itself perfectly to additional self contained accommodation if desired. The property also benefits from a double garage.Floorplan
EPC
To discuss this property call us:
Market your property
with Stevens Estate Agents
Book a market appraisal for your property today. Our virtual options are still available if you prefer.