Description
- Brand new thatch roof
- Two double bedrooms
- Dartmoor National Park Village location
- Parking and garden
Summary
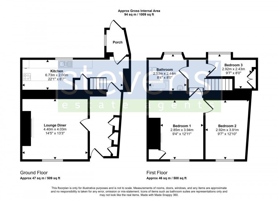
Nestled in a picturesque Dartmoor National Park village, this charming two double bedroom semi-detached newly thatched cottage offers a rare blend of character and convenience. Just a short stroll from two welcoming public houses and the local village shop, the property is perfectly positioned for those who enjoy a strong sense of community and easy access to scenic walks along rivers and open moorland. While not Grade II listed, the cottage has the appeal of an older home, with a pretty garden, private parking, and well-presented interiors in good condition throughoutâready to move straight into.Floorplan

EPC

To discuss this property call us:
Market your property
with Stevens Estate Agents
Book a market appraisal for your property today. Our virtual options are still available if you prefer.